Made in Italy Войти в системуВойти в систему     РегистрацияРегистрация

Газовый котел Libra Condensing Line Tech KB

Документация на котел

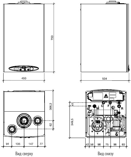
Габариты и расположение соединений

G Подача газа (1/2″)

M Подача воды в систему отопления (3/4″)

C Выход ГВС (1/2″)

F Подача холодной воды (1/2″)

R Возврат из системы отопления (3/4″)

S Слив конденсата

Гидравлическая схема котла Libra Condensing Line Tech KB

© Leon Service Plus, 2011
Технические характеристики продуктов могут различаться в разных регионах и могут быть измены без предварительного уведомления. Точную информацию о них вы можете получить у продавца. Цвет продукта на иллюстрациях может отличаться от реального из-за используемых настроек монитора и искажений в процессе фотографии. Мы стараемся представить самую точную и полную информацию, доступную на момент публикации, однако оставляем за собой право вносить изменения без предварительного уведомления. Упомянутые выше названия продуктов и брендов являются торговыми марками соответствующих компаний.