Напольный газовый котел Altair RTFS E
Документация на котел
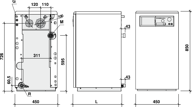
Габаритные размеры

G - Подача газа;
M - Подача воды в систему отопления;
R - Возврат из системы отопления
| Мод. |
L | M | R | G |
| 18 |
510 |
G1 |
G 1 |
G 1/2 |
| 24 |
510 |
G1 |
G 1 |
G 1/2 |
| 32 |
610 |
G1 |
G1 |
G 1/2 |
| 36 |
610 |
G1 |
G1 |
G 1/2 |
Раздельные трубопроводы для воздуха и дымовых газов 80 + 80

Коаксиальный дымоотвод-воздухозабор 100/60
