Made in Italy Войти в системуВойти в систему     РегистрацияРегистрация

Стальные котлы Taurus Dual 1400÷3500 кВт

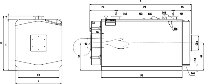
Габаритные размеры


N1 Подающий контур котла N2 Обратный контур котла N3 Патрубок для измерительных приборов N4 Патрубок для слива воды из котла N5 Патрубок предохр. клапана (ов) N6 Колодцы для чувствительных элементов датчиков N8 Колодец для контрольного термометра
  Н
Н1 Н2 Н6 Н10 L L2 Р Р2 РЗ Р4 Р5 Р6
 Модель мм мм мм мм мм мм мм мм мм мм мм мм мм
1400 1746 1630 880 880 150 1470 1270 2886 2300 831 1300 755 350-400
1600 1746 1630 880 880 150 1470 1270 2886 2300 831 1300 755 350-400
1800 1746 1630 880 880 150 1470 1270 3096 2510 771 1850 475 450-500
2000 1876 1760 945 945 150 1600 1400 3220 2510 903 1550 767 450-500
2400 1876 1760 945 945 150 1600 1400 3480 2770 903 1950 627 450-500
3000 2146 2030 1080 1080 150 1870 1670 3480 2770 903 2050 527 450-500
3500 2146 2030 1080 1080 150 1870 1670 3935 3225 903 2050 982 450-500

Соединения

  ∅b ∅c N1 N2 N3 N4 N5 N6
 Модель мм мм DN/in DN/in DN/in дюйм дюйм дюйм
1400 320 400 150 150 1" 1"¼ 1"½ ½"
1600 320 400 150 150 1" 1"¼ 1"½ ½"
1800 320 400 150 150 1" 1"¼ 1"½ ½"
2000 360 500 200 200 1" 1"¼ 2" ½"
2400 360 500 200 200 1" 1"¼ 2" ½"
3000 400 550 200 200 1" 1"¼ 2" ½"
3500 400 550 200 200 1" 1"¼ 2" ½"

 

© Leon Service Plus, 2011
Технические характеристики продуктов могут различаться в разных регионах и могут быть измены без предварительного уведомления. Точную информацию о них вы можете получить у продавца. Цвет продукта на иллюстрациях может отличаться от реального из-за используемых настроек монитора и искажений в процессе фотографии. Мы стараемся представить самую точную и полную информацию, доступную на момент публикации, однако оставляем за собой право вносить изменения без предварительного уведомления. Упомянутые выше названия продуктов и брендов являются торговыми марками соответствующих компаний.